Перейти до основного вмісту Перейти до пошуку Перейти до основної навігації

Буферний накопичувач Reflex Stora HF 1000/1 C w (7844100)

Інформація про продукт "Буферний накопичувач Reflex Stora HF 1000/1 C w (7844100)"

Буферний накопичувач Reflex Stora HF 1000/1 C w об'ємом 921 літр призначений для ефективного накопичення та подальшого перерозподілу теплової енергії від різних джерел теплопостачання. Він виготовлений з високоякісної листової сталі S235JRG2, що забезпечує довговічність та надійність конструкції.

Модель оснащена одним спіралеподібним теплообмінником, який дозволяє інтегрувати накопичувач у складні системи опалення. Теплоізоляція з м'якого поліуретану товщиною 100 мм та зовнішнє покриття енергозберігаючою плівкою PWF білого кольору мінімізують втрати тепла, підвищуючи загальну ефективність системи.

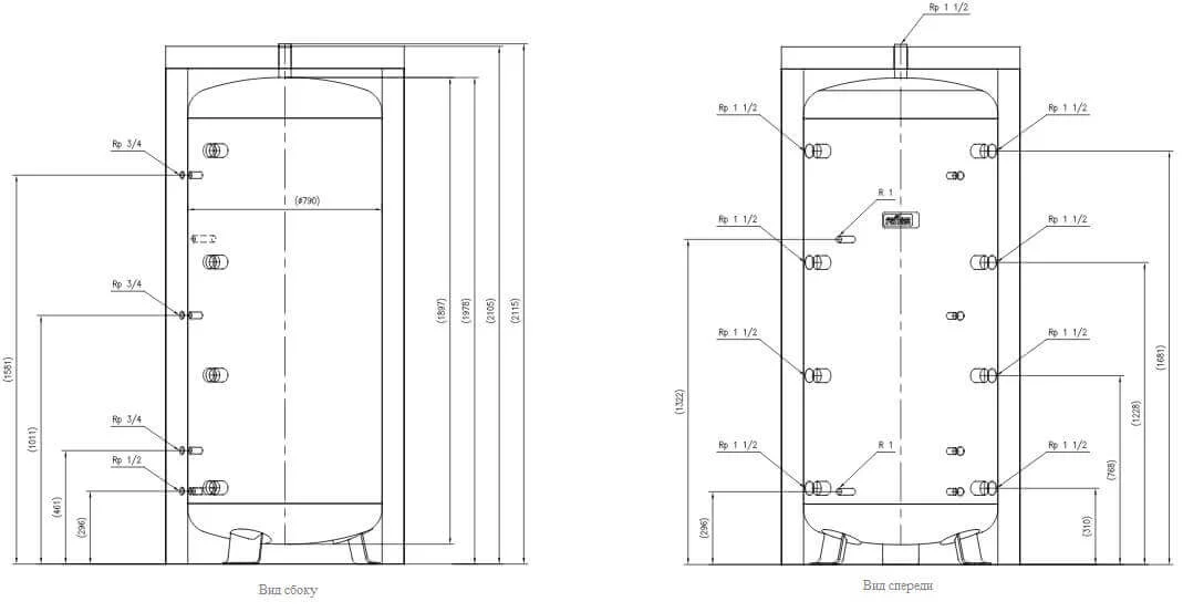
Допустимий робочий тиск для бака становить 3 бар, а для теплообмінника — 16 бар, що гарантує безпечну експлуатацію. Накопичувач має діаметр 990 мм та оснащений отвором для прочищення та ревізії, а також додатковим отвором для підключення електричного ТЕНу, що розширює його функціональні можливості. Максимальна робоча температура становить 95 °C.

  • Енергоефективність: Товста теплоізоляція та спеціальне зовнішнє покриття забезпечують мінімальні втрати тепла, сприяючи економії енергоресурсів.
  • Гнучкість підключення: Наявність спіралеподібного теплообмінника та можливість підключення електричного ТЕНу дозволяють інтегрувати накопичувач у різні конфігурації опалювальних систем.
  • Довговічність матеріалів: Виготовлення з високоякісної сталі та відсутність обробки внутрішньої поверхні бака забезпечують стійкість до корозії та тривалий термін служби.
  • Зручність обслуговування: Отвір для прочищення та ревізії спрощує технічне обслуговування та підтримання оптимальної роботи пристрою.

Цей буферний накопичувач є оптимальним рішенням для приватних будинків, котеджів, а також невеликих промислових об'єктів, де необхідно ефективно керувати тепловою енергією, що надходить від твердопаливних котлів, сонячних колекторів або інших джерел. Він дозволяє згладжувати пікові навантаження та забезпечувати стабільне теплопостачання.

Виробник: Reflex
Країна виробник: Німеччина
Тип обладнання: акумулююча ємність
Вбудований бойлер ГВП: немає
Гарантія: 1 рік
Діаметр: 990 мм
Діаметр підключення контуру опалення: 1 1/2"
Кількість теплообмінників: 1
Максимальний тиск: 3 бар
Максимальний тиск теплообмінника: 16 бар
Можливість підключення електричного ТЕНу: є
Об'єм: 921 л
Отвір для прочищення та ревізії: є
Теплообмінник ГВП: ні
Теплоізоляція: є
Модель: Stora HF 1000/1 C w (7844100)
Розміри: 990 × 2115 × 990 мм

0 з 0 відгуків

Середня оцінка 0 з 5 зірок

Залиште відгук!

Діліться своїм досвідом з іншими клієнтами.


Виробник може змінювати характеристики товару без попередження. Помітили помилку в описі? Напишіть нам — швидко перевіримо та виправимо.

Адмін
Loading...