Перейти до основного вмісту Перейти до пошуку Перейти до основної навігації

Котел твердопаливний Данко АКТВ 20 + плита

Інформація про продукт "Котел твердопаливний Данко АКТВ 20 + плита"

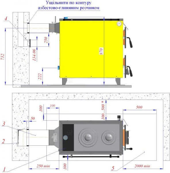
Комбінований побутовий апарат Данко АКТВ 20 призначений для ефективного теплопостачання індивідуальних житлових будинків та комунально-побутових об'єктів, обладнаних системами водяного опалення, а також для приготування їжі. Основу конструкції становить сталевий теплообмінник товщиною 4 мм, що забезпечує надійність та довговічність експлуатації. На верхній частині теплообмінника інтегрована чавунна плита з двома конфорками, що дозволяє використовувати пристрій як опалювальний котел і варильну поверхню одночасно.

Топка апарату має шахтно-пластовий тип, а завантажувальна ємність простягається від колосникової решітки до завантажувального вікна. Для підвищення ефективності роботи в режимах малої потужності та тяги передбачені розпалювальні канали. У нижній частині топки розташовані шурувальні дверцята для зручного очищення колосникової решітки та камери збору золи. Для літнього режиму роботи, коли опалення не потрібне, колосники можна перемістити вище розпалювальних каналів, що підтримуються спеціальними кутниками.

  • Багатофункціональність: Поєднання опалювального котла та варильної плити в одному пристрої дозволяє економити простір та кошти, забезпечуючи дві важливі функції.
  • Зручність використання: Наявність полотенцесушителя на лівій бічній поверхні котла додає практичності у повсякденному використанні.
  • Ефективне спалювання: Шахтно-пластова топка та розпалювальні канали сприяють оптимальному згорянню палива, забезпечуючи ККД 76.5%.
  • Широкий вибір палива: Котел працює на дереві, вугіллі та коксі, надаючи гнучкість у виборі доступного палива.

З потужністю 20 кВт, котел Данко АКТВ 20 + плита здатен опалювати площу до 200 м². Цей апарат є оптимальним рішенням для тих, хто шукає компактне та економічне обладнання, що поєднує функції опалення та приготування їжі, особливо актуальне для невеликих приміщень або як резервне джерело тепла та гарячої води.

Виробник: Данко
Країна виробник: Україна
Тип обладнання: котел твердопаливний
Вид палива: вугілля, дерево, кокс
Гарантія: 3 роки
Діаметр підключення контуру опалення: 1 1/2"
Опалювана площа: 200 м²
Основне паливо: вугілля
Потужність: 20 кВт
Теплообмінник: сталевий 4 мм
Тип: з плитою
vytraty_palyva: 4 кг/час
ККД: 76.5 %
Об'єм води в теплообміннику: 78 л
Об'єм камери завантаження: 70 л
Модель: АКТВ 20 + плита
Розміри: 475 × 882 × 1072 мм

0 з 0 відгуків

Середня оцінка 0 з 5 зірок

Залиште відгук!

Діліться своїм досвідом з іншими клієнтами.


Виробник може змінювати характеристики товару без попередження. Помітили помилку в описі? Напишіть нам — швидко перевіримо та виправимо.

Адмін
Loading...