На жаль, цей товар зараз недоступний. Перегляньте схожі моделі, актуальні альтернативи в категорії або зверніться до менеджера.
Переглянути альтернативи в категорії7 914,00 ₴
Більше не доступний
Опис
Підлоговий газовий котел Маяк КСС 12 кВт призначений для ефективного опалення приміщень площею до 120 м², забезпечуючи стабільний температурний режим у житлових будинках та об'єктах комунально-побутового призначення. Його конструкція передбачає роботу в системах водяного опалення як з природною, так і з примусовою циркуляцією теплоносія, що робить його універсальним рішенням для різних типів опалювальних систем.
Основою котла є сталевий теплообмінник вертикальної жаротрубної конструкції з товщиною металу 3-4 мм, що сприяє довговічності та надійності експлуатації. Газогорелковий пристрій оснащений щілинним низькофакельним пальником POLIDORO, який забезпечує «килимове полум'я» для оптимального згоряння природного газу, та газовим клапаном від провідних виробників, таких як EUROSIT або Honeywell. Завдяки відкритій камері згоряння та димохідному відведенню продуктів згоряння, котел є енергонезалежним і не потребує підключення до електромережі для своєї роботи.
- Високий ККД: Коефіцієнт корисної дії становить не менше 90%, що забезпечує ефективне перетворення енергії палива на тепло.
- Стабільна робота: Обладнаний стабілізатором тяги з оцинкованої сталі, який компенсує надмірну тягу димової труби та запобігає негативному впливу зворотної тяги, гарантуючи безпеку та якість згоряння.
- Стійкість до перепадів тиску: Зберігає працездатність при коливаннях тиску газу в системі від 50 до 500 мм водяного стовпа, що важливо для регіонів з нестабільним газопостачанням.
- Простота обслуговування: Оригінальна конструкція теплообмінника спрощує процеси технічного обслуговування.
Котел Маяк КСС 12 кВт є оптимальним вибором для опалення приватних будинків, дач, невеликих комерційних об'єктів, де пріоритетом є автономність системи опалення та надійність в експлуатації. Його доцільно застосовувати в умовах, де відсутнє стабільне електропостачання, а також у системах, що вимагають підлогового розміщення опалювального обладнання.
Характеристики
- Виробник
- Маяк
- Країна виробник
- Україна
- Тип обладнання
- котел газовий
- Гарантія
- 3 роки
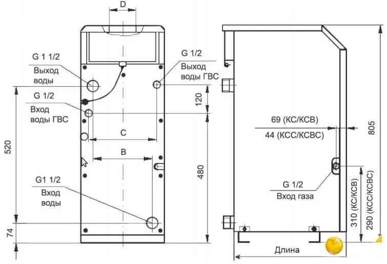
- Діаметр підключення газу
- 1/2"
- Діаметр підключення контуру опалення
- 1 1/2"
- Опалювана площа
- 120 м²
- Потужність
- 12 кВт
- Режим роботи
- тільки опалення
- Спосіб встановлення
- підлоговий
- Теплообмінник
- сталевий
- Тип розпалу
- п'єзо
- Тяга
- димохідний
- Модель
- 12 КСС
- ККД
- 90 %
- Макс. витрата газу
- 1.35 м³/ч
- Діаметр димаря
- 120 мм
- Розміри
- 320 × 805 × 480 мм
- Вага
- 51 кг
Виробник може змінювати характеристики товару без попередження. Помітили помилку в описі? Напишіть нам — швидко перевіримо та виправимо.
Відгуки та питання