Перейти до основного вмісту Перейти до пошуку Перейти до основної навігації

Котел газовий парапетний Маяк АОГВ ПВ 7 кВт

Інформація про продукт "Котел газовий парапетний Маяк АОГВ ПВ 7 кВт"

Енергонезалежний газовий парапетний котел Маяк АОГВ ПВ 7 кВт призначений для ефективного опалення приміщень площею до 70 м² та забезпечення гарячою водою. Завдяки закритій камері згоряння, він не потребує підключення до традиційного димоходу, що спрощує монтаж та дозволяє встановлення у квартирах або будинках без окремої котельні. Модель оснащена двома контурами, що дозволяє одночасно використовувати її для обігріву та підігріву води для побутових потреб з продуктивністю 2-2,5 л/хв при ΔT=35°C.

  • Енергонезалежність: Котел функціонує без підключення до електромережі, забезпечуючи стабільне теплопостачання навіть під час відключень електроенергії.
  • Висока ефективність: Коефіцієнт корисної дії (ККД) становить не менше 90%, що досягається завдяки сталевому жаротрубному теплообміннику товщиною 3-4 мм з вбудованими турбулізаторами, які оптимізують передачу тепла від продуктів згоряння.
  • Надійність компонентів: Оснащений італійською газовою автоматикою EUROSIT 630 та щілинним пальником POLIDORO, виготовленим за лазерними технологіями, що гарантує стабільну та безпечну роботу при номінальній витраті газу 0,82 м³/год.
  • Безпечна експлуатація: Закрита камера згоряння та коаксіальний димохід забезпечують відведення продуктів згоряння безпосередньо назовні через стіну, запобігаючи потраплянню чадного газу в приміщення. Конструкція дефлектора димоходу захищає від задування при поривах вітру до 20 м/с.
  • Універсальність підключення: Котел має двостороннє підключення до системи опалення, що значно спрощує його монтаж та адаптацію до існуючих комунікацій.

Цей двоконтурний газовий котел Маяк АОГВ ПВ 7 кВт є оптимальним рішенням для опалення та гарячого водопостачання в індивідуальних житлових будинках, квартирах або невеликих комерційних приміщеннях площею до 70 м². Його парапетна конструкція дозволяє встановлення у приміщеннях без традиційного димоходу, а енергонезалежність забезпечує безперебійну роботу в умовах нестабільного електропостачання. Котел підходить для систем опалення як з природною, так і з примусовою циркуляцією теплоносія.

Виробник: Маяк
Країна виробник: Україна
Тип обладнання: котел парапетний
Гарантія: 3 роки
Діаметр коаксіального димаря: 130/206 мм
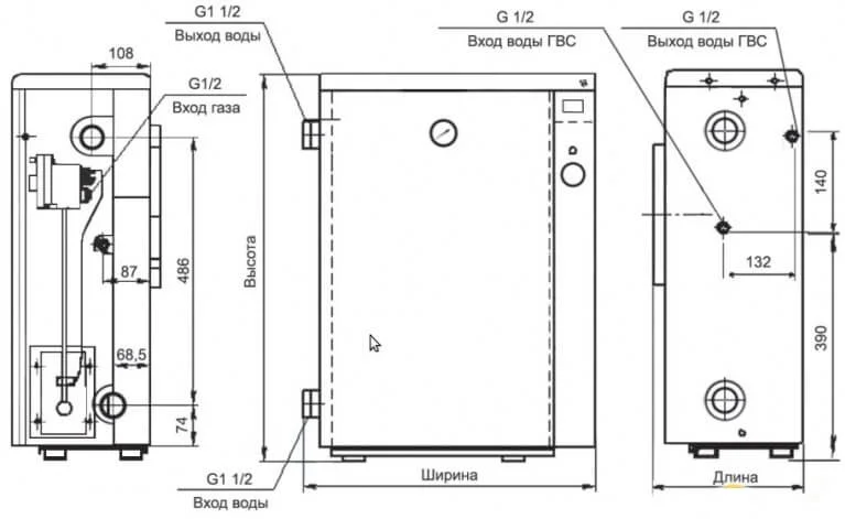
Діаметр підключення ГВП: 1/2"
Діаметр підключення газу: 1/2"
Діаметр підключення контуру опалення: 1 1/2"
Опалювана площа: 70 м²
Потужність: 7 кВт
Режим роботи: опалення та гаряча вода
Спосіб встановлення: підлоговий
Теплообмінник: сталевий
Тип розпалу: п'єзо
Тяга: бездимохідний
ККД: 90 %
Макс. витрата газу: 0.82 м³/ч
Модель: АОГВ 7 ПВ
Розміри: 430 × 650 × 290 мм

0 з 0 відгуків

Середня оцінка 0 з 5 зірок

Залиште відгук!

Діліться своїм досвідом з іншими клієнтами.


Виробник може змінювати характеристики товару без попередження. Помітили помилку в описі? Напишіть нам — швидко перевіримо та виправимо.

Адмін
Loading...